
Vis d’ancrage béton à tête hexagonale avec embase
La vis béton à tête hexagonale avec embase est un système de fixation par verrouillage de forme pour charges lourdes dans le béton fissuré et non fissuré. Elle permet une mise en œuvre plus rapide que les chevilles standards pour des applications permanentes ou provisoires. Le filetage en dents de scie assure un accroche très performante.
- Tableau des produits
- Images
- Description
- Données techniques vis SIMPSON
- Mise en œuvre Vis SIMPSON
- Données techniques vis HECO
- Mise en œuvre Vis HECO
Caractéristiques
Matière
- Acier
Avantages
- Mise en œuvre plus rapide qu’une cheville traditionnelle.
- Fixation esthétique grâce à la tête hexagonale.
- Rondelle large intégrée pour un plaquage parfait de la pièce à fixer.
- Vis démontable pour fixations temporaires.
- Faible entraxe et distance aux bords.
- Mise sous charge immédiate.
- Vis à insérer sans cheville dans un trou pré-percé. Le diamètre du foret pour le pré-perçage est indiqué dans la caractéristique "Diamètre nominal du foret, d0".
Domaines d’utilisation
- Béton fissuré et non fissuré.
- Fixations temporaires : calles de banches, étais.
- Fixations lourdes : sabots de charpente, pied de poteau, fixation de rail, machines, gardes corps.
- Fixations en série : chemins de câbles, sièges de stades et salles, mains courantes, racks et consoles.
Certification
- Déclaration de performance (DoP) :FR-dop-e12-0060
- Agrément technique (ATE) :ETA-12-0060
Dimensions
| Références | Code article | Diamètre du filetage [mm] | Longueur [mm] | Epaisseur maximale de la pièce à fixer [mm] | Diamètre maximale de la pièce à fixer [mm] | Diamètre de perçage x profondeur minimale de perçage [mm] |
|---|---|---|---|---|---|---|
| THD M8-70/5 | THD08070 | 10.3 | 70 | 5 | 12 | 8 x 75 |
| THD M8-80/15 | THD08080 | 10.3 | 80 | 15 | 12 | 8 x 75 |
| THD M8-120/55 | THD08120 | 10.3 | 120 | 55 | 12 | 8 x 75 |
| THD M8-140/75 | THD08140 | 10.3 | 140 | 75 | 12 | 8 x 75 |
| THD M8-160/95 | THD08160 | 10.3 | 160 | 95 | 12 | 8 x 75 |
| THD M10-80/5 | THD10080 | 12.5 | 80 | 5 | 14 | 10 x 85 |
| THD M10-90/15 | THD10090 | 12.5 | 90 | 15 | 14 | 10 x 85 |
| THD M10-100/25 | THD10100 | 12.5 | 100 | 25 | 14 | 10 x 85 |
| THD M10-120/45 | THD10120 | 12.5 | 120 | 45 | 14 | 10 x 85 |
| THD M10-140/65 | THD10140 | 12.5 | 140 | 65 | 14 | 10 x 85 |
| THD M10-160/85 | THD10160 | 12.5 | 160 | 85 | 14 | 10 x 85 |
| THD M10-170/95 | THD10170 | 12.5 | 170 | 95 | 14 | 10 x 85 |
| THD M12-110/15 | THD12110 | 14.4 | 110 | 15 | 16 | 12 x 105 |
| THD M12-130/35 | THD12130 | 14.4 | 130 | 35 | 16 | 12 x 105 |
| THD M12-150/55 | THD12150 | 14.4 | 150 | 55 | 16 | 12 x 105 |
| THD M12-190/95 | THD12190 | 14.4 | 190 | 95 | 16 | 12 x 105 |
| THD M16-130/15 | THD16130 | 19.6 | 130 | 15 | 22 | 16 x 130 |
| THD M16-150/35 | THD16150 | 19.6 | 150 | 35 | 22 | 16 x 130 |
Résistance de calcul
| Références | Résistance de calcul | ||||||||||||||||
|---|---|---|---|---|---|---|---|---|---|---|---|---|---|---|---|---|---|
| Traction - NRd [kN] | Cisaillement - VRd [kN] | Moment de flexion – MRd [Nm] | |||||||||||||||
| Béton fissuré | Béton non fissuré | Béton fissuré | Béton non fissuré | ||||||||||||||
| C20/25 | C30/37 | C40/50 | C50/60 | C20/25 | C30/37 | C40/50 | C50/60 | C20/25 | C30/37 | C40/50 | C50/60 | C20/25 | C30/37 | C40/50 | C50/60 | ||
| THD M8-70/5 | 3.3 | 4.1 | 4.7 | 5.2 | 4.2 | 5.1 | 5.9 | 6.5 | 11.7 | 11.7 | 11.7 | 11.7 | 11.7 | 11.7 | 11.7 | 11.7 | 26.7 |
| THD M8-80/15 | 3.3 | 4.1 | 4.7 | 5.2 | 4.2 | 5.1 | 5.9 | 6.5 | 11.7 | 11.7 | 11.7 | 11.7 | 11.7 | 11.7 | 11.7 | 11.7 | 26.7 |
| THD M8-120/55 | 3.3 | 4.1 | 4.7 | 5.2 | 4.2 | 5.1 | 5.9 | 6.5 | 11.7 | 11.7 | 11.7 | 11.7 | 11.7 | 11.7 | 11.7 | 11.7 | 26.7 |
| THD M8-140/75 | 3.3 | 4.1 | 4.7 | 5.2 | 4.2 | 5.1 | 5.9 | 6.5 | 11.7 | 11.7 | 11.7 | 11.7 | 11.7 | 11.7 | 11.7 | 11.7 | 26.7 |
| THD M8-160/95 | 3.3 | 4.1 | 4.7 | 5.2 | 4.2 | 5.1 | 5.9 | 6.5 | 11.7 | 11.7 | 11.7 | 11.7 | 11.7 | 11.7 | 11.7 | 11.7 | 26.7 |
| THD M10-80/5 | 4.2 | 5.1 | 5.9 | 6.5 | 5.8 | 7.1 | 8.2 | 9 | 18.3 | 18.3 | 18.3 | 18.3 | 18.3 | 18.3 | 18.3 | 18.3 | 52.7 |
| THD M10-90/15 | 4.2 | 5.1 | 5.9 | 6.5 | 5.8 | 7.1 | 8.2 | 9 | 18.3 | 18.3 | 18.3 | 18.3 | 18.3 | 18.3 | 18.3 | 18.3 | 52.7 |
| THD M10-100/25 | 4.2 | 5.1 | 5.9 | 6.5 | 5.8 | 7.1 | 8.2 | 9 | 18.3 | 18.3 | 18.3 | 18.3 | 18.3 | 18.3 | 18.3 | 18.3 | 52.7 |
| THD M10-120/45 | 4.2 | 5.1 | 5.9 | 6.5 | 5.8 | 7.1 | 8.2 | 9 | 18.3 | 18.3 | 18.3 | 18.3 | 18.3 | 18.3 | 18.3 | 18.3 | 52.7 |
| THD M10-140/65 | 4.2 | 5.1 | 5.9 | 6.5 | 5.8 | 7.1 | 8.2 | 9 | 18.3 | 18.3 | 18.3 | 18.3 | 18.3 | 18.3 | 18.3 | 18.3 | 52.7 |
| THD M10-170/95 | 4.2 | 5.1 | 5.9 | 6.5 | 5.8 | 7.1 | 8.2 | 9 | 18.3 | 18.3 | 18.3 | 18.3 | 18.3 | 18.3 | 18.3 | 18.3 | 52.7 |
| THD M12-110/15 | 6.7 | 8.1 | 9.4 | 10.3 | 13.9 | 16.9 | 19.6 | 21.5 | 25.2 | 25.2 | 25.2 | 25.2 | 25.2 | 25.2 | 25.2 | 25.2 | 85.3 |
| THD M12-130/35 | 6.7 | 8.1 | 9.4 | 10.3 | 13.9 | 16.9 | 19.6 | 21.5 | 25.2 | 25.2 | 25.2 | 25.2 | 25.2 | 25.2 | 25.2 | 25.2 | 85.3 |
| THD M12-150/55 | 6.7 | 8.1 | 9.4 | 10.3 | 13.9 | 16.9 | 19.6 | 21.5 | 25.2 | 25.2 | 25.2 | 25.2 | 25.2 | 25.2 | 25.2 | 25.2 | 85.3 |
| THD M12-190/95 | 6.7 | 8.1 | 9.4 | 10.3 | 13.9 | 16.9 | 19.6 | 21.5 | 25.2 | 25.2 | 25.2 | 25.2 | 25.2 | 25.2 | 25.2 | 25.2 | 85.3 |
| THD M16-130/15 | 13.9 | 16.9 | 19.6 | 21.5 | 16.7 | 20.3 | 23.5 | 25.8 | 38.3 | 46.7 | 46.7 | 46.7 | 46.7 | 46.7 | 46.7 | 46.7 | 214.9 |
| THD M16-150/35 | 13.9 | 16.9 | 19.6 | 21.5 | 16.7 | 20.3 | 23.5 | 25.8 | 46.7 | 46.7 | 46.7 | 46.7 | 46.7 | 46.7 | 46.7 | 46.7 | 214.9 |
1) Les résistances design ont été calculées en utilisant les coefficients partiels de sécurité pour les résistances données dans l’ETE-12/0060
2) Les résistances recommandées ont été calculées en utilisant les coefficients partiels de sécurité pour les résistances données dans l’ETE-12/0060 et avec un coefficient de sécurité sur les actions de γF=1.4.
3) Les valeurs de charges sont valides pour un béton non renforcé et renforcé avec un espacement des barres s ≥ 15 cm (tout diamètre) ou avec un espacement des barres s ≥ 10 cm, si le diamètre de barre est de 10 mm ou inférieur.
4) Pour les charges combinées traction et cisaillement, ou les groupes d’ancrages et /ou en cas d’influence des bords, un calcul doit être effectué suivant l’ETAG001, Annexe C, méthode de calcul A ou suivant le CEN/TS 1992-4:2009 méthode de calcul A. Les ancrages exposés au feu doivent être calculés suivant l’EOTA -TR 020:2004 ou CEN/TS 1992-4:2009 Annexe D. Our les détails, voir l’ETA-12/0060.
Montage
- Fixation selon le principe de verrouillage de forme : le filet de la vis taraude le support d’ancrage lors du serrage de celle-ci.
- Ouverture de la clé : voir tableau ci-dessous (SW13 à 24)
- L’utilisation d’une boulonneuse est nécessaire dans le béton. (pas de visseuse à chocs)
Données d’installation
| Références | Diamètre de perçage [mm] | Profondeur minimale de perçage [mm] | Diamètre de perçage de la pièce à fixer (au travers) [mm] | Ouverture de clé sur plat | Couple de serrage [Nm] | Impact clé à choc (7) [Nm] | Profondeur d’ancrage [mm] | Distance entraxes caractéristique(5) [mm] | Distance entraxes mini [mm] | Distance au bord caractéristique [mm] | Distance au bord minimale [mm] | Epaisseur minimale du support [mm] |
|---|---|---|---|---|---|---|---|---|---|---|---|---|
| THD M8-70/5 | 8 | 75 | 12 | 13 | NA | ≤ 200 | 47 | 141 | 50 | 70.5 | 50 | 105 |
| THD M8-80/15 | 8 | 75 | 12 | 13 | NA | ≤ 200 | 47 | 141 | 50 | 70.5 | 50 | 105 |
| THD M8-120/55 | 8 | 75 | 12 | 13 | NA | ≤ 200 | 47 | 141 | 50 | 70.5 | 50 | 105 |
| THD M8-140/75 | 8 | 75 | 12 | 13 | NA | ≤ 200 | 47 | 141 | 50 | 70.5 | 50 | 105 |
| THD M8-160/95 | 8 | 75 | 12 | 13 | NA | ≤ 200 | 47 | 141 | 50 | 70.5 | 50 | 105 |
| THD M10-80/5 | 10 | 85 | 14 | 15 | 75 | ≤ 515 | 55 | 165 | 60 | 82.5 | 60 | 125 |
| THD M10-90/15 | 10 | 85 | 14 | 15 | 75 | ≤ 515 | 55 | 165 | 60 | 82.5 | 60 | 125 |
| THD M10-100/25 | 10 | 85 | 14 | 15 | 75 | ≤ 515 | 55 | 165 | 60 | 82.5 | 60 | 125 |
| THD M10-120/45 | 10 | 85 | 14 | 15 | 75 | ≤ 515 | 55 | 165 | 60 | 82.5 | 60 | 125 |
| THD M10-140/65 | 10 | 85 | 14 | 15 | 75 | ≤ 515 | 55 | 165 | 60 | 82.5 | 60 | 125 |
| THD M10-160/85 | 10 | 85 | 14 | 15 | 75 | ≤ 515 | 55 | 165 | 60 | 82.5 | 60 | 125 |
| THD M10-170/95 | 10 | 85 | 14 | 15 | 75 | ≤ 515 | 55 | 165 | 60 | 82.5 | 60 | 125 |
| THD M12-110/15 | 12 | 105 | 16 | 18 | NA | ≤ 515 | 70 | 210 | 80 | 105 | 80 | 150 |
| THD M12-130/35 | 12 | 105 | 16 | 18 | NA | ≤ 515 | 70 | 210 | 80 | 105 | 80 | 150 |
| THD M12-150/55 | 12 | 105 | 16 | 18 | NA | ≤ 515 | 70 | 210 | 80 | 105 | 80 | 150 |
| THD M12-190/95 | 12 | 105 | 16 | 18 | NA | ≤ 515 | 70 | 210 | 80 | 105 | 80 | 150 |
| THD M16-130/15 | 16 | 130 | 22 | 24 | 280 | ≤ 515 | 86 | 258 | 100 | 129 | 100 | 180 |
| THD M16-150/35 | 16 | 130 | 22 | 24 | 280 | ≤ 515 | 86 | 258 | 100 | 129 | 100 | 180 |
NA : non renseigné
Dimensions
| Références | Diamètre du filetage (d) [mm] | Longueur (L) [mm] | Diamètre nominal du foret, (d0) [mm] | Epaisseur maximale de la pièce à fixer (tfix) [mm] | Diamètre embase [mm] |
|---|---|---|---|---|---|
| 48381 | 6 | 40 | 5 | 5/(15) | 11 |
| 48383 | 6 | 50 | 5 | 5/15/(25) | 11 |
| 48385 | 6 | 60 | 5 | 15/25/(35) | 11 |
| 48387 | 6 | 70 | 5 | 25/35/(45) | 11 |
| 49816 | 6 | 80 | 5 | 35/45/(55) | 11 |
| 49846 | 7.5 | 35 | 6 | 1/(10) | 14 |
| 48389 | 7.5 | 40 | 6 | 5/(15) | 14 |
| 48391 | 7.5 | 50 | 6 | 15/(25) | 14 |
| 48393 | 7.5 | 60 | 6 | 5/25/(35) | 14 |
| 48397 | 7.5 | 80 | 6 | 25/45/(55) | 14 |
| 49817 | 7.5 | 100 | 6 | 45/65/(75) | 14 |
| 49819 | 7.5 | 120 | 6 | 65/85/(95) | 14 |
| 49821 | 7.5 | 140 | 6 | 85/105/(115) | 14 |
| 48399 | 10 | 60 | 8 | 10 | 19 |
| 48401 | 10 | 70 | 8 | 5/20 | 19 |
| 48403 | 10 | 80 | 8 | 15/30 | 19 |
| 48405 | 10 | 90 | 8 | 25/40 | 19 |
| 48453 | 10 | 100 | 8 | 35/50 | 19 |
| 48455 | 10 | 120 | 8 | 55/70 | 19 |
| 48457 | 10 | 140 | 8 | 75/90 | 19 |
| 48459 | 10 | 160 | 8 | 95/110 | 19 |
| 48407 | 12 | 80 | 10 | 5 | 22 |
| 48409 | 12 | 90 | 10 | 1/15 | 22 |
| 48411 | 12 | 100 | 10 | 10/25 | 22 |
| 48413 | 12 | 120 | 10 | 30/45 | 22 |
| 48415 | 12 | 140 | 10 | 50/65 | 22 |
| 48461 | 12 | 160 | 10 | 70/85 | 22 |
| 48463 | 12 | 180 | 10 | 90/105 | 43.5 |
| 48465 | 12 | 200 | 10 | 110/125 | 43.5 |
| 48467 | 12 | 240 | 10 | 150/165 | 43.5 |
| 48469 | 12 | 280 | 10 | 190/205 | 43.5 |
| 48471 | 12 | 320 | 10 | 230/245 | 43.5 |
| 49848 | 16 | 120 | 14 | 5/20 | 30 |
| 48417 | 16 | 130 | 14 | 15/30 | 30 |
| 48419 | 16 | 140 | 14 | 25/40 | 30 |
| 48421 | 16 | 160 | 14 | 45/60 | 30 |
| 48423 | 20 | 160 | 18 | 20 | 38 |
| 48425 | 20 | 180 | 18 | 40 | 38 |
| 48427 | 20 | 200 | 18 | 60 | 38 |
| 48429 | 6 | 50 | 5 | 5/15 | 11 |
| 48431 | 6 | 60 | 5 | 15/25 | 11 |
| 48433 | 7.5 | 50 | 6 | 15 | 14 |
| 48435 | 7.5 | 60 | 6 | 5/25 | 14 |
| 48437 | 7.5 | 70 | 6 | 15/35 | 14 |
| 48439 | 10 | 60 | 8 | 10 | 19 |
| 48441 | 10 | 70 | 8 | 5/20 | 19 |
| 48443 | 10 | 80 | 8 | 15/30 | 19 |
| 48445 | 10 | 90 | 8 | 25/40 | 19 |
| 48447 | 12 | 90 | 10 | 1/15 | 22 |
| 48449 | 12 | 100 | 10 | 10/25 | 22 |
| 48451 | 12 | 120 | 10 | 30/45 | 22 |
* (...) = les valeurs tfix entre parenthèses s’appliquent uniquement en cas d’utilisation des vis dans des systèmes redondants non porteurs (cf. ATE-15/0785).
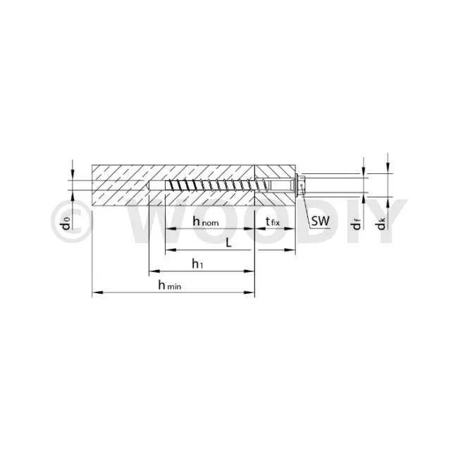
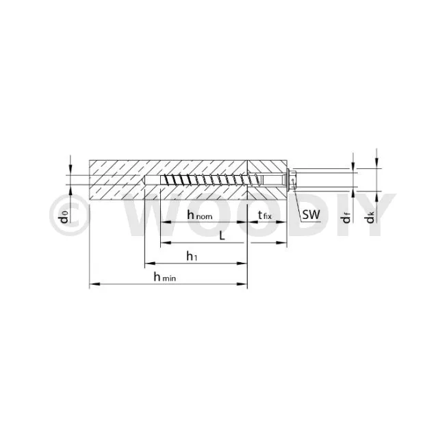
Données d’installation
| Références | Profondeur minimale de perçage [mm] | Diamètre de perçage de la pièce à fixer (df) (au travers) [mm] | Ouverture de clé sur plat | Couple de serrage [Nm] | Profondeur d’ancrage (hnom) [mm] | Distance au bord minimale (Cmin) [mm] | Epaisseur minimale du support (hmin) [mm] |
|---|---|---|---|---|---|---|---|
| 48381 | 40 | 7 | SW-8 | 75 | 35 | 30 | 100 |
| 48383 | 50/40 | 7 | SW-8 | Tmax1 : 100 ; Tmax2 : 75 | 45/35 | 30 | 100 |
| 48385 | 50/40 | 7 | SW-8 | Tmax1 : 100 ; Tmax2 : 75 | 45/35 | 30 | 100 |
| 48387 | 50/40 | 7 | SW-8 | Tmax1 : 100 ; Tmax2 : 75 | 45/35 | 30 | 100 |
| 49816 | 50/40 | 7 | SW-8 | Tmax1 : 100 ; Tmax2 : 75 | 45/35 | 30 | 100 |
| 49846 | 40 | 9 | SW-10 | 120 | 35 | 30 | 100 |
| 48389 | 40 | 9 | SW-10 | 120 | 35 | 30 | 100 |
| 48391 | 40 | 9 | SW-10 | 120 | 35 | 30 | 100 |
| 48393 | 65/40 | 9 | SW-10 | 120 | 55/35 | 30 | 100 |
| 48397 | 65/40 | 9 | SW-10 | 120 | 55/35 | 30 | 100 |
| 49817 | 65/40 | 9 | SW-10 | 120 | 55/35 | 30 | 100 |
| 49819 | 65/40 | 9 | SW-10 | 120 | 55/35 | 30 | 100 |
| 49821 | 65/40 | 9 | SW-10 | 120 | 55/35 | 30 | 100 |
| 48399 | 60 | 12,5 | SW-13 | 250 | 50 | 35 | 100 |
| 48401 | 75/60 | 12,5 | SW-13 | 250 | 65/50 | 35 | 115 |
| 48403 | 75/60 | 12,5 | SW-13 | 250 | 65/50 | 35 | 115 |
| 48405 | 75/60 | 12,5 | SW-13 | 250 | 65/50 | 35 | 100 |
| 48453 | 75/60 | 12,5 | SW-13 | 250 | 65/50 | 35 | 100 |
| 48455 | 75/60 | 12,5 | SW-13 | 250 | 65/50 | 35 | 100 |
| 48457 | 75/60 | 12,5 | SW-13 | 250 | 65/50 | 35 | NA |
| 48459 | 75/60 | 12,5 | SW-13 | 250 | 65/50 | 35 | NA |
| 48407 | 85 | 14,5 | SW-15 | 250 | 75 | 40 | 125 |
| 48409 | 100/85 | 14,5 | SW-15 | 250 | 90/75 | 40 | 125 |
| 48411 | 100/85 | 14,5 | SW-15 | 250 | 90/75 | 40 | NA |
| 48413 | 100/85 | 14,5 | SW-15 | 250 | 90/75 | 40 | NA |
| 48415 | 100/85 | 14,5 | SW-15 | 250 | 90/75 | 40 | NA |
| 48461 | 100/85 | 14,5 | SW-15 | 250 | 90/75 | 40 | NA |
| 48463 | 100/85 | 14,5 | SW-19 | 250 | 250 | 90/75 | 150 |
| 48465 | 100/85 | 14,5 | SW-19 | 250 | 90/75 | 40 | 125 |
| 48467 | 100/85 | 14,5 | SW-19 | 250 | 90/75 | 40 | 125 |
| 48469 | 100/85 | 14,5 | SW-19 | 250 | 90/75 | 40 | NA |
| 48471 | 100/85 | 14,5 | SW-19 | 250 | 90/75 | 40 | NA |
| 49848 | 125/110 | 19 | SW-21 | 600 | 115/100 | 60 | NA |
| 48417 | 125/110 | 19 | SW-21 | 600 | 115/100 | 60 | NA |
| 48419 | 125/110 | 19 | SW-21 | 600 | 115/100 | 60 | NA |
| 48421 | 125/110 | 19 | SW-21 | 600 | 115/100 | 60 | NA |
| 48423 | 160 | 23 | SW-24 | 800 | 140 | 80 | NA |
| 48425 | 160 | 23 | SW-24 | 800 | 140 | 80 | NA |
| 48427 | 160 | 23 | SW-24 | 800 | 140 | 80 | NA |
- NA : non renseigné
- Profondeur d’ancrage : hnom / hef
- Profondeur minimale de perçage : prof de perçage avec nettoyage h1 / prof de perçage sans nettoyage h2
Fixations dans le béton
Fixations en maçonnerie
Remarques :
- Soufflage facultatif après le pré-perçage.
- Toujours percer plus profond que la longueur de la vis.



























